
本发明属于机械设计
技术领域:
,具体涉及一种CIGS柔性电池片分切机及其使用方法。
背景技术:
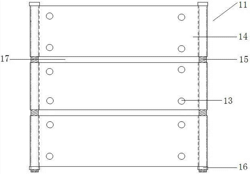
:铜铟镓硒(CIGS)薄膜太阳能电池在加工工艺上分为玻璃衬底与不锈钢衬底两种,采用不锈钢衬底制作电池片具有重量轻、厚度薄、可弯曲、易携带,且光吸收能力强,发电稳定性好、转化效率高、成本低等诸多优势,已成为太阳能行业现在研发及使用的热点;目前使用的片材CIGS柔性电池片是上游电池生产商从几百米、上千米长的大型卷材中分切、加工而成;而到中游组件厂商在CIGS柔性电池组件系列产品、CIGS便携式充电器和相应应用产品的生产中,需要对来料原始尺寸电池片进行再次分切,以满足产品设计中电性能要求,目前CIGS柔性电池片分切工具却很少,其中使用最多的工具为切纸刀。加工过程中,切纸刀存在以下缺点:分切尺寸精度较差,因为分切过程中电池片容易滑动;人员工作强度大,且有分切中无安全防护,人员容易疲劳,易受伤;分切效率低,每人8~10次/min;产线人工成本高,为保持产线线平衡,分切工序需要增加更多的人员、裁纸机,以满足下道电池片拼接工序的生产节奏。技术实现要素:根据以上现有技术的不足,本发明所要解决的技术问题是提出一种CIGS柔性电池片分切机及其使用方法,通过在上刀模上设置多把刀具,同时分切,单位时间内分切出多张电池片。为了解决上述技术问题,本发明采用的技术方案为:一种自动控制的CIGS柔性电池片分切机构,包括上刀模、下刀模、机架、导柱和PLC控制器,所述下刀模设置在上刀模的正下方,所述上刀模包括多个刀具和上刀模夹具单元,每两个上刀模夹具单元之间固定一把刀具,上刀模通过导柱连接机架,PLC控制器控制气液增压缸驱动上刀模向下刀模方向往复运动,所述下刀模为输送带面上带有多个间隙相同的凸台的输送机,电池片放置在凸台上。所述分切机上设有RFID组件,RFID组件包括多个RFID阅读器和设置在凸台端面上的RFID标签,多个RFID阅读器设置在垂直于水平面的同一直线上,多个RFID阅读器读取到RFID标签信息后,发送给PLC控制器,PLC控制器计算分析RFID标签距离RFID阅读器的距离。作为一种优选实施方式:所述上刀模夹具单元为侧面设有通孔的四方体结构,所述上刀模夹具单元的宽度为52.35mm、105.15mm或52.8mm。所述上刀模和导柱之间设有刀模固定板,上刀模夹具单元上设有定位孔,刀模固定板对应位置设有腰型孔,通过双头螺柱穿过所述定位孔和腰型孔,将上刀模固定在刀模固定板上,刀模固定板连接导柱。所述凸台上表面与水平面设有一个夹角,凸台上表面的两端存在5mm高度差。所述凸台宽度为26.4mm,凸台间间隙宽度为26.4mm。所述凸台的上表面设有用于吸附电池片的软磁片。所述软磁片的上表面设有降低软磁片对电池片吸附能力的面板,面板为隔水膜材质。所述分切机构还包括比例流量阀和比例压力阀,比例流量阀用来调控气液增压缸入口的气体流量,比例压力阀用来调控气流的入口压力。所述分切机构还包括采集比例压力阀输入电流的电流传感器、比例流量阀入口压力P入和比例压力阀出口压力出的压力传感器、流经比例流量阀的流量Q的流量传感器和增压缸输出轴的位移传感器,电流传感器、压力传感器、流量传感器和位移传感器均连接至PLC控制器,PLC控制器通过比例压力阀内置或外置压力传感器分别采集P入,P出和Q信号值,进行数据对比后,比例压力阀输出修正信号,通过输出的电流或电压信号来控制比例压力阀开口大小及比例压力阀调压腔中气体的压力,直到输出压力、流量与输入信号成比例。一种CIGS柔性电池片分切机的使用方法,包括如下步骤:Step1:首先根据需要分切得到的电池片尺寸组装上刀模,将组装好的上刀模固定在机架上;Step2:调整下刀模的初始位置,使下刀模凸台端面的RFID标签对准阅读阅读器;Step3:PLC控制器通过气液增压缸驱动上刀模向下刀模的方向运动,上刀模上的刀具完成对电池片的分切后,驱动上刀模远离下刀模的方向运动,完成一次分切;Step4:PLC控制器控制下刀模转动一定距离后,多个RFID阅读器向RFID标签和RFID多个RFID阅读器所在的空间平面内发射电磁波信号,检测RFID标签信号,建立该平面的二维坐标系,设定RFID阅读器的位置是(xn,yn)待检测RFID标签的坐标为(x,y),RFID阅读器接收到的RFID标签的方向角为θn,则有:tanθn=y-ynx-xn]]>得到:y=yn+(x-xn)tanθn其中,yn、xn、x和tanθn都为已知量,通过将RFID标签和凸台端面距离RFID阅读器的初始位置进行对比,确定下刀模的输送带面是否跑偏;如果检测不到RFID标签信号,则可以判断下刀模的运动距离偏离了初始设定距离;如果检测到下刀模的输送带面没有跑偏,则执行步骤Step3;如果检测到跑偏或者检测不到信号,则停机检测。所述步骤Step3还包括对气液增压缸的输出压力的调节,具体为:系统采集比例压力阀输入电流、比例流量阀入口压力P入和比例压力阀出口压力出、流经比例流量阀的流量Q和增压缸输出轴的位移,PLC控制器根据采集的P入,P出和Q信号值,进行数据对比后,比例压力阀输出修正信号,通过输出的电流或电压信号来控制比例压力阀开口大小及比例压力阀调压腔中气体的压力,直到输出压力、流量与输入信号成比例。本发明有益效果是:本发明提供的分切装置分切精度高,上下刀模配合可达到0.1mm的分切精度;分切效率高,分切速度可达到15n/min(n为上刀模配置的切刀数量);3.分切操作人员人身安全风险降低,配置多项安全装置;4.操作简单。附图说明下面对本说明书附图所表达的内容及图中的标记作简要说明:图1是本发明的具体实施方式的分切装置的结构示意图。图2是本发明的具体实施方式的上刀模俯视图。图3是本发明的具体实施方式的下刀模结构示意图。图4是本发明的具体实施方式的软磁片的位置示意图。图5是本发明具体实施方式的动力系统示意图。图6是本发明具体实施方式的RFID组件二维坐标系示意图。其中,1.气液增压缸,2.导柱,3.刀模固定板,4.光栅,5.操作面板,6.PLC控制器,7.机架,8.电源按钮,9.紧急按钮,10.启动按钮,11.上刀模,12.有机玻璃板,13.定位孔,14上刀模夹具单元,15螺栓,16螺母,17切刀,18凸台,19软磁片,20空压机,21空气过滤器,22减压阀,23压力表,24油雾器,25比例流量阀,26比例压力阀,27工作缸,28预压缸。具体实施方式下面对照附图,通过对实施例的描述,本发明的具体实施方式如所涉及的各构件的形状、构造、各部分之间的相互位置及连接关系、各部分的作用及工作原理、制造工艺及操作使用方法等,作进一步详细的说明,以帮助本领域技术人员对本发明的发明构思、技术方案有更完整、准确和深入的理解。本发明的主要思路是:分切装置包括上刀模11和下刀模,上刀模11采用气液增压缸1来驱动,上刀模11上固定有刀具,下刀模上放置有待切割的电池片,增压缸驱动上刀模11向下刀模的方向运动,实现电池片的分切。采用增压缸来产生大压力,使刀具17能够快速将柔性电池片切断,不影响电池片的电性能;分切装置三面配置有机玻璃,操作面配置安全光栅4,并设置为双按钮操作,来保证操作人员的人身安全;上下刀模定制,在上刀模11上配置适量刀具17,实现一次分切,得到多块电池片。如图1所示,为本发明的分切装置的结构示意图,分切装置包括动力系统、定位系统和电气控制系统,定位系统是刀具、电池片的定位夹持机构,动力系统是上刀模11的驱动机构,电气控制系统控制动力系统、以及其他电器。定位系统包括机架7、导柱2、刀模固定板3、上刀模11和下刀模,上刀模11固定在刀模固定板3上,刀模固定板3通过导柱2连接机架7的顶端,可沿着导柱2轴向上下移动,气液增压缸1为上刀模11提供驱动力。下刀模设置于上刀模11的正下方,是柔性电池片的支撑机构。上刀模11包括刀具、和多个上刀模夹具单元14,多个上刀模夹具单元14通过螺栓15和螺母16组装在一起,两个上刀模夹具单元14之间空出一个刀槽的位置,用于装上刀具。依据分切材料尺寸的不同,在每两个夹具单元间分别安装一把刀具,以实现提高生产效率的目的。如图2所示,为上刀模11的俯视图,每两个上刀模夹具单元14卡紧一把刀具17,上刀模夹具单元14和刀具17的两端均设有可通螺栓15穿过的通孔,将上刀模夹具单元14和刀具17组装好后,通过螺栓15和两端的螺母16固定。具体的,在实际应用中,电池片需要分切成的尺寸一般为52.8mm和105.6mm,刀具的厚度为0.45mm,因此,本发明的上刀模夹具单元14宽度方向设计成52.35mm、105.15mm和52.8mm,需要分切成52.8mm宽度的电池片时,用多个52.35mm宽度的上刀模夹具单元14组装上刀模11夹具,每两个上刀模夹具单元14之间固定一把刀具17。需要分切成105.6mm宽度的电池片时,用多个105.15mm宽度的上刀模夹具单元14组装上刀模11夹具,每两个上刀模夹具单元14之间固定一把刀具17;或者将105.15mm宽度的上刀模夹具单元14替换成52.35mm和52.8mm宽度的上刀模夹具单元14组装成105.15mm宽度的上刀模夹具单元14。如图2所示,为组装好的上刀模11,上刀模11通过双头螺柱、螺母16和垫片固定在刀模固定板3上,每个上刀模夹具单元14上设有定位孔13,刀模固定板3上对应设置有腰型孔,双头螺柱穿过所述上刀模夹具单元14上的定位孔13和刀模固定板3上的腰型孔,通过垫片和螺母16使上刀模11固定在刀模固定板3上。如图3所示,为下刀模的结构图,下刀模是以输送带为核心的电池片承载装置,包括电机、输送带和输送带表面的凸台18,输送带表面的凸台18为间隔设置,凸台18上设有可以吸附电池片的软磁片19。整个凸台18为柔性材料,便于凸台18转过传送带两端面的时候,凸台18拉伸弯曲。在输送带的中间位置加设多个支撑辊,以保持输送带面的张力。软磁片19由于不具有拉伸性能,因此将软磁片19设计为多个条状单元间隔布置在柔性凸台18的外表面。选用磁性相对较弱的软磁片19作为电池片的定位装置,一方面是因为铜铟镓硒薄膜电池片为不锈钢衬底,使用软磁片19可以吸附住铜铟镓硒薄膜电池片。另一方面,铜铟镓硒薄膜电池片在拼接完成后需要从工装表面取下,这就要求工装对铜铟镓硒薄膜电池片的吸附力不能太强,否则会加大取下铜铟镓硒薄膜电池片难度系数。在软磁片19的上表面内根据软磁对铜铟镓硒电池片吸附力的大小来决定是否放置面板,面板可以采用厚度相对较薄的材料,例如隔水膜等,通过在软磁表面添加表面光滑的面板来改变软磁片19对铜铟镓硒电池吸附力度。如图4所示,为凸台18上软磁片19的位置示意图。电池片的常见分切尺寸为52.8mm和105.6mm,本发明优选凸台18和一个凸台18间间隙的宽度为52.8mm,凸台18宽度为26.4mm,凸台18间间隙宽度为26.4mm,传送带每转动n*52.8mm的距离,上刀模11对电池片进行一次分切,n为刀具的数量。为便于上刀模11的刀具对电池片的快速分切,将刀具17刀锋与电池片平面设置一个角度,可以通过使上刀模11与水平面设置一个夹角,或者通过下刀模与水平面设置一个夹角,如图3所示,凸台18与平面设置一个倾斜角度,使电池片的两端形成5mm的高度差。在机架7上除了电池片进出侧,其他三面都配置有有机玻璃板12,防止人员在装置工作过程中将手伸至上刀模11下面;另外,在没有装配有机玻璃板12的一面设置有安全光栅4,光栅4保护接入中间继电器,通过中间继电器触点在分别接入PLC控制器6和急停电路,光栅4开关动作报警后,增压缸停止动作,需从面板从新启动。下刀模的传送带一部分处于机架7的有机玻璃防护罩内部,一部分处于机架7有机玻璃防护罩外部,已经分切好的电池片经传送带输送到玻璃防护罩的外部,通过人工或者机械手方式下料。动力系统是以增压缸为核心的动力调节装置,包括空压机20、空气过滤器21、减压阀22、压力表23、油雾器24、比例流量阀25、比例压力阀26、气液增压缸1、预压缸28、工作缸27、传感器等部件构成,如图5所示,比例流量阀25用来调控气液增压缸1入口的气体流量,比例压力阀26用来调控气流的入口压力;传感器与比例阀配合使用,可检测比例阀输出口的气流压力与驱动电流是否成比例,整个行程属于闭环控制,能够实现增压系统气流的反馈控制。动力系统具体的控制原理为压缩气体经比例流量阀25,其入口压力P入,流量为Q,经比例压力阀26出口压力为P出,进入气液增压缸1。PLC控制器6通过比例压力阀26内置或外置传感器分别采集P入,P出和Q信号值,进行数据对比后,比例压力阀26输出修正信号,通过输出的电流或电压信号来控制比例压力阀26开口大小及比例压力阀26调压腔中气体的压力,直到输出压力、流量与输入信号成比例。此外,在驱动系统气液增压缸1安装位移传感器,用来检测工作过程中气液增压缸1的位移、输出力等运动学参数,并将信号输出至控制系统。PLC控制器6采用PCI总线方式,应用集成的数据采集卡PCI-1713,采集比例压力阀26输入电流、位移传感器、流量传感器和压力传感器的数据,比例压力阀26输入的电流经电压转换装置和调理电路后,直接接到数据采集卡的接线板上。比例压力阀26能够实现输入信号与输出压力成比例变化,当输入信号增大时,给气电磁阀开启,排气电磁阀仍保持闭合状态。压缩空气通过给气电磁阀作用在先导阀的先导腔,同时,先导腔的压力上升,作用在膜片上面,而与膜片连动的给气阀被打开,压缩气体通过输出口流向上刀模11,为上刀模11提供输出压力。压缩气体通过压力传感器将压力信号转换成电信号,反馈到控制回路中,与控制输入信号进行比较,若产生偏差信号,则需要修正输出量。如此通过不断的反馈修正动作,最终实现输出气体的压力和控制输入信号成比例。比例流量阀25根据控制系统输入电信号的大小来改变阀口的开口大小,从而控制流量的大小。电气控制系统包括PLC控制器6、RFID组件,在启动按钮10和电源按钮8都接通后,系统开始工作,从操作面板5输入输送带电机的运行参数和增压缸的运行参数,由输送电机的转动步距来确定增压缸的工作频率,每切割完成一次,输送带向前转动一定的距离后,增压缸带动上刀模11再次下刀。RFID组件包括RFID标签组和RFID阅读器组,将RFID标签设置在凸台18的端部,每个凸台18的端部设置一个RFID标签,RFID阅读器设置在机架7上,RFID阅读器组包括至少两个RFID阅读器,多个RFID阅读器设置在垂直于水平面的同一竖直直线上。通过RFID阅读器向垂直于凸台18端部平面的方向发射无线电磁波,RFID标签检测到该信号时,向RFID阅读器返回该信号。在实际的使用过程中,传送带电机每转动一个角度后,PLC控制器6向RFID阅读器发出检测指令,RFID向垂直于凸台18端面发射定向电磁波信号,如果接收到RFID标签返回的数据信息,则PLC控制器6可以从RFID阅读器确认电机的转动角度为初始设定距离。另外,可以通过RFID组件检测凸台18边缘距离RFID阅读器的距离,检测是否有输送带面跑偏现象。本发明的RFID阅读器组采用定向天线,在RFID阅读器组和RFID标签组垂直于凸台18端面的平面内发射电磁波信号,RFID阅读器组同步发射无线信号,借助天线阵列检测电磁波的入射角方向,利用两个RFID阅读器检测到的同一目标,在电磁波信号平面内就可以确定待检测RFID标签的位置。多个RFID阅读器组可以用于检验这一结果的准确性。如图6所示,建立该平面的二维坐标系,设定RFID阅读器组的位置分别是(xn,yn)、(xm,ym),待检测RFID标签的坐标为(x,y),阅读设备组接收到的RFID标签的方向角为θn,θm,则有:tanθn=y-ynx-xntanθm=y-ymx-xm]]>得到:x=-xntanθn+xmtanθm+yn-ymtanθm-tanθn]]>本发明中,如果将RFID阅读器组设置在y轴上,其中一个设在原点,也即RFID阅读器组的位置分别是(0,y1)和(0,y2),tanθ1和tanθ2为已知量,此时,RFID标签的位置即为:x=y1-y2tanθ2-tanθ1]]>通过将标签的位置与没有跑偏时的正常距离进行比较,即可以得到输送带的位置是否偏离基准位置。本发明的装置实施过程如下:检查机台状态、打开电源-->松开紧急按钮9-->选取适合的上下刀模-->将电池片放置于下刀模上进行定位-->双手分别按钮操作按钮-->气液增压缸1推动上刀模11下降进行分切-->上刀模11退回-->传送带运动-->RFID组件检测电池片及传送带位置-->取出分切好的电池片,并进行下一个循环。上面结合附图对本发明进行了示例性描述,显然本发明具体实现并不受上述方式的限制,只要采用了本发明的方法构思和技术方案进行的各种非实质性的改进,或未经改进将本发明的构思和技术方案直接应用于其它场合的,均在本发明的保护范围之内。本发明的保护范围应该以权利要求书所限定的保护范围为准。当前第1页1 2 3
技术特征:
1.一种CIGS柔性电池片分切机,其特征在于,包括上刀模(13)、下刀模、机架(7)、导柱(2)和PLC控制器,所述下刀模设置在上刀模(13)的正下方,所述上刀模(13)包括多个刀具(17)和上刀模夹具单元(14),每两个上刀模夹具单元(14)之间固定一把刀具(17),上刀模(13)通过导柱(2)连接机架(7),PLC控制器控制气液增压缸(1)驱动上刀模(13)向下刀模方向往复运动,所述下刀模为输送带面上带有多个间隙相同的凸台(18)的输送机,电池片放置在凸台(18)上,所述分切机上设有RFID组件,RFID组件包括多个RFID阅读器和设置在凸台端面上的RFID标签,多个RFID阅读器设置在垂直于水平面的同一直线上,多个RFID阅读器读取到RFID标签信息后,发送给PLC控制器,PLC控制器计算分析RFID标签距离RFID阅读器的距离。
2.根据权利要求1所述的柔性电池片分切机,其特征在于,所述上刀模夹具单元(14)为侧面设有通孔的四方体结构,所述上刀模夹具单元(14)的宽度为52.35mm、105.15mm或52.8mm。
3.根据权利要求1所述的柔性电池片分切机,其特征在于,所述上刀模(13)和导柱(2)之间设有刀模固定板(3),上刀模夹具单元(14)上设有定位孔,刀模固定板(3)对应位置设有腰型孔,通过双头螺柱穿过所述定位孔和腰型孔,将上刀模(13)固定在刀模固定板(3)上,刀模固定板(3)连接导柱(2)。
4.根据权利要求1所述的柔性电池片分切机,其特征在于,所述凸台(18)上表面与水平面设有一个夹角,凸台(18)上表面的两端存在5mm高度差。
5.根据权利要求4所述的柔性电池片分切机,其特征在于,所述凸台(18)宽度为26.4mm,凸台(18)间间隙宽度为26.4mm。
6.根据权利要求1所述的柔性电池片分切机,其特征在于,所述凸台(18)的上表面设有用于吸附电池片的软磁片(19)。
7.根据权利要求6所述的柔性电池片分切机,其特征在于,所述软磁片(19)的上表面设有降低软磁片(19)对电池片吸附能力的面板,面板为隔水膜材质。
8.根据权利要求1-7任意一项所述的CIGS柔性电池片分切机的使用方法,其特征在于,包括如下步骤:
Step1:首先根据需要分切得到的电池片尺寸组装上刀模,将组装好的上刀模固定在机架上;
Step2:调整下刀模的初始位置,使下刀模凸台端面的RFID标签对准阅读阅读器;
Step3:PLC控制器通过气液增压缸驱动上刀模向下刀模的方向运动,上刀模上的刀具完成对电池片的分切后,驱动上刀模远离下刀模的方向运动,完成一次分切;
Step4:PLC控制器控制下刀模转动一定距离后,多个RFID阅读器向RFID标签和RFID多个RFID阅读器所在的空间平面内发射电磁波信号,检测RFID标签信号,建立该平面的二维坐标系,设定RFID阅读器的位置是(xn,yn)待检测RFID标签的坐标为(x,y),RFID阅读器接收到的RFID标签的方向角为θn,则有:
得到:
y=yn+(x-xn)tanθn
其中,yn、xn、x和tanθn都为已知量,通过将RFID标签和凸台端面距离RFID阅读器的初始位置进行对比,确定下刀模的输送带面是否跑偏;如果检测不到RFID标签信号,则可以判断下刀模的运动距离偏离了初始设定距离;如果检测到下刀模的输送带面没有跑偏,则执行步骤Step3;如果检测到跑偏或者检测不到信号,则停机检测。
9.根据权利要求8所述的CIGS柔性电池片分切机的使用方法,其特征在于:所述步骤Step3还包括对气液增压缸的输出压力的调节,具体为:系统采集比例压力阀(26)输入电流、比例流量阀(25)入口压力P入和比例压力阀(26)出口压力出、流经比例流量阀(25)的流量Q和增压缸输出轴的位移,PLC控制器根据采集的P入,P出和Q信号值,进行数据对比后,比例压力阀(26)输出修正信号,通过输出的电流或电压信号来控制比例压力阀(26)开口大小及比例压力阀(26)调压腔中气体的压力,直到输出压力、流量与输入信号成比例。
技术总结
本发明公开了一种CIGS柔性电池片分切机及其使用方法,包括上刀模、下刀模、机架和导柱,所述下刀模设置在上刀模的正下方,电池片放置在下刀模上,所述上刀模包括多个刀具和上刀模夹具单元,每两个上刀模夹具单元之间固定一把刀具,上刀模通过导柱连接机架,上刀模在增压缸的驱动下向下刀模方向往复运动。本发明提供的分切装置分切精度高,上下刀模配合可达到0.1mm的分切精度,分切效率高,一次下刀可以分切多张电池片。
技术研发人员:夏颖;赵亮;陈小雨
受保护的技术使用者:安徽鼎晖新能源科技有限公司
文档号码:201610859110
技术研发日:2016.09.28
技术公布日:2017.01.11

一.薄膜分切机毛边毛边大部分原因是分切切刀太钝而造成,更换切刀可解决问题。不同型号的薄膜因厚度,对切刀的磨损程度也不同,厚度越厚,对切刀的磨损越大,因此必须根据不同的分切对象,适时调整刀片刀槽位置或更
分条机厂家哪家强2023-09-15
PET薄膜的表面是十分光滑的,表面张力很小,对水和油墨的亲和力很弱,因此需要增加表面的张力,最常用的处理方法就是电晕处理。
薄膜复卷分切机哪家好2024-07-16
分切机在收、放卷过程中,收卷和放卷直径是不断变化的,直径的变化必然会引起原料张力的变化。分切机放卷在制动力矩不变的情况下,直径减少,张力将随之增大。而分切机收卷则相反,如果收卷力矩不变时,随着收卷直径
分切机生产厂家2023-07-31
这可能会影响后续的加工和使用。本文将会分析收卷不齐的原因,并且介绍解决这个问题的办法。
精选问答2024-07-24
如何维护分切机?在日常的生产过程中,分切机会出现一些问题,那么主要有哪些问题呢?会有什么影响?让我们来看一看。1. 底部的皱纹这种问题只发生在卷绕长度开始时,主要表现为起皱和条纹较深,其原因是由多种因
分切机哪家好2023-09-05